Розетка под варочную панель
Современная кухня оснащена электротехникой покруче, чем звездолёты в старых фильмах. И требует ответственного подхода к выбору и монтажу проводки и электроустановочных изделий.
Начнём с того, коль вы решили обрадовать хозяйку кухни и установить массу современной бытовой техники, как мелкой, так и крупной — сначала займитесь новой электропроводкой. Для начала, разделите контур освещения и питания, а потом посчитайте количество техники и сколько будут «кушать» кухонные агрегаты.
Скорее всего, питающих контуров понадобится несколько. Чтобы не вешать для домашних грозные правила в стиле «стиралку и посудомойку одновременно не включать!». Запомните!!!
Электрические варочные панели и духовые шкафы потребляют большую мощность (от 2,5 до 10 кВт). Потому, по современным правилам электробезопасности, розетки для них требуют отдельной выделенной линии электропитания от щитка.
Причём, если варочная панель и духовой шкаф предусматривают независимую установку, то для них потребуются две розетки, с отдельными точками подключения на распределительном щитке.
Вопрос какую розетку выбрать для варочной панели, то тут все зависит от характеристик техники. Варочные панели и духовые шкафы бывают как однофазными, так и трехфазными и могут иметь мощность от 2,5 до 10 кВт.
Возможно, целесообразней будет питающий кабель от щитка подключить напрямую на клеммники панели, либо сделать соединение кабелей через мини-щиток, если поверхность идет в комплекте с кабелем. В этом случае вилка-розетка для варки не понадобятся.
Но про автомат и УЗО забывать не стоит, ставим их на линию электроплиты. Как их подобрать — описано ниже.
«Варка» и/или духовой шкаф мощностью до 3.5 кВт подключаются в стандартную розетку на 16 А/220 В. У духового шкафа в большинстве случаев установлен обычный провод и 16-ти амперная вилка (при независимом подключении), поэтому потребуется только розетка. У варочной панели вилки нет, поэтому подбирать придется и вилку, и розетку.
Для более мощных однофазных моделей электроплит и шкафов от 3.6 до 7 кВт понадобится силовая розетка с характеристиками 32 А/220 В и при необходимости — специальная вилка на 32А.
Трехфазная варочная поверхность и/или духовой шкаф требуют питания с вольтажом в 380 В и трёхфазную розетку на 20 Ампер, если мощность не выше 3.5 кВт или в 32 Ампера для мощной варки от 3.6 до 7 кВт.
Если в комплектации духового шкафа и/или варочной панели вилка не прилагается, то понадобится также 3-фазная вилка с соответствующим ампертражом.
Запомните!!!
Таким образом, нельзя заменить специальные розетки под варочную панель и духовой шкаф на модели для осветительных приборов и мелкой бытовой техники.
В вопросе куда устанавливать розетки под варочную панель, то тут особых требований нет. Обычно это цокольная зона кухни и высота установки 10 см (верхний край розетки). Если духовка смонтирована выше уровня стола, то розетку желательно также сделать поблизости.
Общее правило!
Скрытый монтаж или наружный
Это на ваш выбор, как удобней. Единственное правило — в деревянном доме выполняется наружная электропроводка, и все приборы устанавливаются такие же. Это требование электробезопасности, поскольку дерево — материал горючий и прятать в него провода и прочие источники возгорания категорически запрещено.
Это, кстати, касается и кухонной мебели. Если нужно установить розетку для духовки, а рядом запланирован шкаф, то вырезаем в задней стенке отверстие и монтируем всё в стену или на стену, но не на шкаф!
В случае бетонных или кирпичных стен можно использовать оба варианта монтажа розетки для электроплиты. С точки зрения безопасности скрытая установка предпочтительней.
Но если период ремонта давно закончен, сгодится и наружный монтаж с помощью кабель-каналов. При установке исключите контакт провода с горючими материалами, такими как дерево, неогнестойкие пластики.
Запомните!!!
Установка духового шкафа в кухонный гарнитур: варианты и особенности
Если духовку планируется установить в нише кухонного гарнитура выше либо на уровне пояса, то вырез следует заранее подогнать под величины прибора. Края покрывают защитной лентой, а после того как будет установлена мебель в вырез вставляют духовой шкаф.
Многие встраивают духовку в пенал, колонну, а варочную панель ставят отдельно на столешнице. Духовой шкаф можно расположить под микроволновкой или над нею, либо над ящиками. Пользоваться им станет удобнее, чтобы наблюдать за приготовлением пищи не надо наклоняться
Важно и то, что дети не смогут дотянуться до панели управления
Электрическую духовку ставят и в одной из тумб гарнитура, но тогда она будет располагаться на небольшом возвышении. При выборе данного варианта следует на стадии проекта подобрать конструкцию и материал. Он должен выдерживать вес прибора и быть устойчивым к высоким температурам. Надо учитывать высоту духового шкафа, чтобы хозяйка смогла без проблем им пользоваться. Нечасто, но встречается угловое расположение этого кухонного прибора.
Преимущества встраиваемой бытовой техники
Встроенные духовые шкафы любых марок Сименс, Бош, Electrolux серии Рlatinum (Платинум), Ханс и других классифицируются по способу нагрева на два типа.
Электрические
Розетка для духового шкафа и варочной поверхности
Варочная плита и духовка – это приборы, потребляющие много энергии: от 2.5 до 10 кВт. Согласно правилам безопасности, для духового шкафа требуется провести отдельную линию, начиная от щитка. Духовку маленькой мощностью до 3.5 кВт можно включать в обычную розетку на 16 А, для нее подходит кабель на 220 В. Если мощность варочных панелей от 3.6 до 7 кВт, им нужна отдельная линия и силовая розетка на 32 А. Встроенной духовке, работающей от напряжения 3.5 кВт – трехфазная розетка на 20 А. Она обеспечивает заземление, в ней имеется более трех штырей.
Если шкаф предстоит встроить, и он будет связан с панелью, специальную розетку не ставят. Здесь выводят общую силовую линию. Для независимых устройств потребуется 2 розетки. У них отдельные кабели, а на щитке автономные точки монтажа. Для установки розетки нужна накладная коробка.
Не стоит приобретать дешевые комплектующие, они могут:
- плохо установиться;
- замкнуть;
- оплавиться.
В евророзетке внутренности сделаны из керамики, они выдерживают высокие продолжительные нагрузки. Наружный монтаж используют в деревянных домах с открытой проводкой. Внутренние розетки делают в блочных, кирпичных и газобетонных стенах.
Основное требование к размещению розетки – она не должна ставиться прямо за духовым шкафом. Ее устанавливают над полом на расстоянии не ниже 30 см, справа, слева или выше самой техники.
При подключении к электричеству важно соблюдать правильный порядок подсоединения проводов
Подключение к электросети
Важно не только знать, как поставить духовой шкаф, но обязательно уметь подключать его к электрической сети. При отсутствии знаний выполнять эту работу самостоятельно не стоит
Подключение мощного бытового оборудования к старой электропроводке недопустимо. Это ведет к:
- перегоранию проводов;
- короткому замыканию;
- пожару.
Старую электропроводку меняют на новую. На нее ставят автомат, он отвечает за пожарную и электрическую безопасность пользования приборами. Его главная задача предупреждать перегрев проводов. Каждый кабель рассчитан на определенную силу тока. Прохождение тока большого значения приводит к его перегреву, оплавлению проводки и возникновению короткого замыкания. При превышении допустимых значений автомат выполняет отключение подачи тока. Это устройство подбирают с учетом энергоемкости электроприбора и вида сети: однофазная или трехфазная.
При подключении духового шкафа к 3-х фазной сети, под 5-контактную колодку ставят продолговатую модель бокса. Ее крепят на поверхности стены либо вместе с самим кабелем утапливают в стену. При подключении провод, зачищенный от изоляции, вставляют под металлические пластины. С помощью отвертки затягивают контакт прижимными болтами. Для надежности контакта делают это прилагая усилия. Жилы провода подсоединяют в строгом соответствии с маркировкой. Фазный провод с духового шкафа – напротив фазного со щитка, «земля» – заземляющего, нейтральный – напротив нуля.
Фазы должны соответствовать маркировке
Как устанавливать духовой шкаф
После выбора типа прибора и конкретной модели, необходимо провести определенные подготовительные работы, перед тем, как приступить к установке встраиваемого духового шкафа своими руками
Особое внимание уделяется подготовке стен и мебели. Кухонную мебель и технику изготавливают по установленным шаблонам, поэтому покупку встраиваемой духовки можно отложить на завершающий этап ремонта
Чаще всего для установки в нишу подбирают духовой электрический шкаф 45 см шириной. Это стандартный размер прибора.

Место под установку духового шкафа необходимо предусмотреть еще на этапе планирования кухонного гарнитура
Что касается самой ниши, то необходимо позаботится об отсутствии перекосов. Неровная поверхность может повлечь за собой неравномерность распределение веса тяжелой техники. Ниша должна быть чуть больше размеров духового шкафа. Сзади духовки необходимо предусмотреть не менее 4 см, внизу – не меньше 9 см и по 5 см с каждого бока. Такие интервалы позволят избежать перегрева и деформации мебели и техники.
Заблаговременно, еще до установки кухонного гарнитура, необходимо определится с источником питания и, если это необходимо, заменить газовые трубы и краны входа или электропроводку.
Установка встроенной духовки: монтаж электрики
Установка встроенного электрического духового шкафа предполагает наличие надежной электропроводки и соответствующего автомата УЗО или хотя бы силовой розетки с заземлением, если ремонт был сделан давно и монтаж электрощита проблематичен. В выборе проводки предпочтительней должна быть медная с тремя жилами. Провода должны размещаться на высоте минимум 10 см, а сила тока должна составлять не меньше 40 ампер. Если есть отдельная проводка, то во избежание короткого замыкания следует убедиться в том, что она выдержит силу тока.

Подключение электрической части — наиболее важный и ответственный момент при монтаже духовки
Во время работы с электрикой следует соблюдать ряд правил:
- недопустимо соединение проводов между собой путем скрутки;
- нельзя напрямую соединять алюминиевый провод с медным;
- для соединения проводов следует использовать специальные винтовые клеммники;
- подключать проводку к электрощиту следует через отдельный автомат.
При установке электрического духового шкафа, встраиваемого своими руками, особое внимание следует обратить также на штекер. Современные модели, как правило, оснащены массивными, рассчитанными на высокое напряжение штекерными вилками
Недопустимо наличие брака, ржавчины или других повреждений на них.
Статья по теме:
Окончание монтажа предполагает соединение всех проводов и подключение устройства. Перед тем как пользоваться духовым шкафом, необходимо обязательно проверить его работу, что бы потом не пришлось проводить демонтаж оборудования. Проводка должна размещаться в специальном отверстии в нише, во избежание пережима провода и его деформации.
Особенности установки духовых шкафов Bosch и Electrolux
Установка духового шкафа Бош довольно простая и предполагает всего лишь подключение в розетку, однако предварительно на ней должен быть установлен специальный отдельный предохранитель. Зависимые духовки, которые соединены с электроплитой, подразумевают прямое подключение к току высокого напряжения, поэтому установку такого оборудования должен проводить квалифицированный электрик.

Отдельные производители могут указывать индивидуальные требования к установке их техники
Если же речь идет о монтаже компактного духового шкафа, то предварительно следует познакомиться со схемами и рекомендациями, которые прилагаются к конкретной модели. Также желательно просмотреть специальное видео установки встраиваемого духового шкафа своими руками на сайте производителя.
Свои нюансы имеет установка духового шкафа Электролюкс. Техника от этого производителя отличается высоким уровнем встроенной электроники и целым рядом защитных функций. Например, в соответствии с инструкцией к целому ряду моделей, первое включение духового шкафа, да и все последующие, возможны только после установки времени.
Этап подготовки к установки духовки
Подготовка места для установки духового шкафа
Классическим вариантом считается установка духового шкафа под варочной панелью. Но сегодня многие пользователи уходят от этого, выбирая другое решение для себя, установку встраиваемого духового шкафа выше рабочей поверхности. Так удобнее следить за приготовлением, ставить и вынимать блюда, да и малышам сложнее дотянутся до техники.
Если вы тоже задаётесь вопросом, как установить духовой шкаф в гарнитур, то перед покупкой стоит подготовить нишу. Так как размеры ниши должны соответствовать духовке. Даже если будут мелкие огрехи, то техника может не стать или работать неправильно
Обратите внимание, что стены ниши по отношению к дну и потолку располагаются строго перпендикулярно. Перекосов быть не должно
Советуем, между нишей и духовкой оставить:
- Внизу 9 см.
- Сверху 5 см.
- Сбоку 4 см.
Этого расстояния вполне хватит для хорошей вентиляции.
Теперь о том, как подготовить место установки. Для начала изучите техническую документацию. Учтите, что духовку лучше ставить рядом с мебелью, которая может выдерживать большие температуры рядом (около 50 градусов). Нельзя ставить прибор рядом с тем, что может легко загореться – шторы, масло, полотенца и прочее. А также с холодильником. Устанавливать электрический духовой шкаф стоит недалеко от розетки, но которая расположена выше, чем 10 см от пола.
Монтаж и установка духового шкафа
Варианты монтажа:
- Под рабочей поверхностью в шкафчике. Если у вас самостоятельный духовой шкаф, то необязательно, чтобы над ним была варочная панель. Такое размещение позволят сэкономить место на столешнице.
- В высоко шкафу-пенале. Такой вариант подойдёт, если кухня большая, плюс станет проще следить за приготовлением еды и ухаживать за техникой.
- В высоком шкафчике. Он, как правило, стоит с самого края и ещё держит на себе другие приборы, микроволновку, например. Подходит для обычных по размеру кухонь.
- На рабочем островке. Вариант для просторных столовых, а также если вы готовите довольно редко.
- В углу. Если убрали раковину, главное, чтобы дверцы духовки открывались легко.
Как выбрать
Встраиваемые варочные плиты и духовые шкафы продаются в комплекте или по отдельности.
По этой причине варочные панели делятся на зависимые и независимые:
- у зависимых поверхностей, продающихся в комплекте с духовкой, кнопки управления находятся на дверце духового шкафа;
- у независимых – управление расположено на ее поверхности.
Духовые шкафы, предназначенные для встраивания, имеют типоразмеры:
- ширину 60, 90, 45 см;
- высоту 45, 55 – 60 см;
- глубину 50 – 55 см.
В конструкции модуля учитываются размеры варочной плиты: расстояние до стены или других вертикальных поверхностей должно быть не менее 50 мм для циркуляции воздуха, чтобы не вызвать перегрева. Тумба под варочную поверхность и духовку может быть с выдвижным ящиком в верхней или в нижней части.
А вот какая газовая плита лучше для использования и по каким параметрам стоит подбирать, поможет понять данная
На видео – как правильно сделать выбор:
Нельзя крепить плиту над духовкой, лишенной вентиляции.
Установка варочной плиты должна иметь идеально ровную поверхность, чтобы не нарушить ее эксплуатационные характеристики.
Подключение варочной плиты к электропроводке требует профессиональных знаний, так как сечение провода подключения рассчитывается самостоятельно в зависимости от мощности плиты.
Электропроводка должна быть защищена, необходимо установить выключатель для отключения плиты в аварийном состоянии.
При установке встраиваемой духовки необходимо соблюдение следующих правил:
- помещение должно быть сухим;
- иметь хорошую
- расположение духовки должно обеспечить свободный доступ к элементам управления.
В конструкции короба необходимо учесть ширину, глубину духовки и размер зазора под нижний (верхний) выдвижной ящик.
При установке газового духового шкафа требуется соединить магистральную линию со шлангом от духовки.
Выполнять подключение должен специалист.
После помещения духовки в короб необходимо отрегулировать ее положение по вертикали и горизонтали и закрепить.
Видео: подключение панели в розетку
На видео – правило подключения панели к сети:
В традиционных кухонных печах духовой шкаф совмещен с варочной панелью. Но не всех хозяек устраивает такой вариант организации рабочего пространства. Чтобы сделать процесс готовки максимально удобным, а интерьер кухни – стильным и компактным, используют специальную мебель для встраивания духовых шкафов.
Подключение газового шкафа
Основная задача при самостоятельном подключении духового газового шкафа заключается в подводке газа к духовке. Перед тем, как подключить шкаф, надо осознавать, что эту работу должны выполнять квалифицированные мастера. В противном случае возможно нарушение соединений и утечка газа, что может привести к тяжёлым последствиям.
Важно!
Подключение любых газовых приборов строго запрещено на участке трубы до основного газового крана, в случае крайней необходимости эти работы должны производить лицензированные службы.
По правилам техники безопасности участок между общим краном, перекрывающим подачу газа, и варочной поверхностью должен быть надежно защищен от любых механических и температурных воздействий. Поэтому он выполняется из стальной водогазопроводной ВГП трубы, но данное требование устарело и во многих домах вместо стальной трубы используется специальный гибкий газовый шланг.
При монтаже важно обеспечить свободный доступ для экстренного отключения в случае возникновения аварийной ситуации. Подключение к системе центрального газоснабжения может быть осуществлено двумя способами: с помощью жесткой стальной или медной трубы, или посредством гибкого сильфонного шланга (резиновый шланг в металлической оплетке из нержавейки). Подключение к системе центрального газоснабжения может быть осуществлено двумя способами: с помощью жесткой стальной или медной трубы, или посредством гибкого сильфонного шланга (резиновый шланг в металлической оплетке из нержавейки)
Подключение к системе центрального газоснабжения может быть осуществлено двумя способами: с помощью жесткой стальной или медной трубы, или посредством гибкого сильфонного шланга (резиновый шланг в металлической оплетке из нержавейки).
При первом способе требуются сложные сварочные работы с вызовом специалистов, поэтому для подключения духовки своими руками проще использовать специальные газовые шланги. Сама работа в этом случае состоит из нескольких этапов.
Пример сильфонного шланга
Прежде всего необходимо убедиться в том, что всё применяемое оборудование и комплектующие сертифицированы и соответствуют нормам безопасности. Гарантией этого может служить приобретение всех деталей у официального надежного продавца.
Дополнительно на газовом шланге должен быть указан срок службы и условия эксплуатации изделия.
Если в кухню устанавливается только один духовой шкаф, достаточно присоединить сильфонный шланг от патрубка за общим краном газовой магистрали к входу духовки (при необходимости его можно заменить на более длинный).
При этом следует помнить, что запрещается использование бытовых газовых шлангов длиной более двух метров.
Пример тройника для варочной поверхности и газовой духовки
Часто возникает ситуация, когда к газовой сети нужно подключить встраиваемый духовой шкаф и варочную панель одновременно. В этом случае на наружном патрубке трубы или шланга делается разветвление путём установки тройника.
Далее к тройнику присоединяются два крана отдельно на встроенный духовой шкаф и варочную поверхность, от них при помощи двух сильфонных шлангов осуществляется непосредственное подключение газового оборудования.
Важно!
Нередко духовые шкафы имеют два входа для подключения с обеих сторон, поэтому необходимо на свободный патрубок после подключения ставить заглушку. Иногда входной патрубок духовки выходит из плиты не под углом, а прямо, что неудобно для подключения. В этом случае на его свободный конец устанавливается г-образный переходник, облегчающий подключение.
Электроснабжение духовки необходимо осуществлять по отдельной линии, всё подключаемое оборудование должно быть заземлено.
После работ необходимо проверить, как правильно собраны все комплектующие и их герметичность, с целью выявления возможных утечек газа. Для этого используется мыльная эмульсия, которая наносится на стыки всех соединений. В этом случае, если появляются пузыри, производится разборка проблемного соединения и уплотнение его ленточной обмоткой или паклей.
К подключению духовки нужно отнестись максимально серьезно, особенно если это газовый духовой шкаф
По завершении всех работ духовка устанавливается в предназначенную для нее нишу и фиксируется крепежными шурупами.
Как встроить духовой шкаф: этапы
Чтобы не ломать голову над тем, как своими руками безошибочно установить встроенный духовой шкаф, действуйте по заранее разработанному плану.
Подготовка инструмента и вспомогательных материалов
В общем случае для быстрой установки духовки в подходящую для нее нишу кухонного гарнитура, скорее всего, потребуется:
- дрель с набором сверл и фрез;
- отвертка или шуруповерт;
- изолента;
- стандартные соединительные клеммы для проводов;
- нож;
- вилка с куском кабеля необходимой длины, если духовой шкаф приобретен без них.
Если окажется, что к месту установки не подведена электрическая сеть, заканчивающаяся подходящей розеткой, придется позаботиться о способе ее прокладки и маскировки проложенной трассы.
Позаботьтесь о наличии розетки для подключения духового шкафа
Подготовка рабочего места
Обдумывая варианты, как встроить новый духовой шкаф, вы должны заблаговременно позаботиться о наличии ниши, с некоторым запасом превышающей размеры духовки. Способов для ее создания может быть несколько:
- предусмотреть соответствующее отделение при заказе кухонного гарнитура;
- приобрести отдельный модуль, выпускаемый специально под встраиваемые духовки;
- выделить подходящий отсек в уже имеющейся мебели;
- внести изменения в конструкцию существующего шкафа, самостоятельно оборудовав необходимую нишу.
О величине оставляемых зазоров речь шла ранее.
Важно! Отклонения зазоров в большую сторону не так критичны, как в меньшую.
Установка
Перед установкой надо убедиться в возможности подключения кабеля с вилкой, протянутого от духовки к предназначенной для него розетки. Если соответствующее отверстие в задней или боковой стенке отсутствует, его надо аккуратно проделать самому с помощью дрели или электролобзика.
Устанавливается духовой шкаф в нишу в соответствии с требованиями прилагаемой к изделию инструкции. Он может стоять на регулируемых ножках или крепиться специальными шурупами к боковым стенкам выделенного для него отсека. В этом случае его лицевая панель с дверкой становятся составной частью интерьера
В процессе монтажа важно добиться горизонтального положения прибора и надежной фиксации
Подключение
Стадию подключения духового шкафа обычно совмещают с его установкой, поскольку после окончательного монтажа доступ к задней стенке прибора чаще всего оказывается невозможным. Существует два способа подключения электрооборудования к электрической сети:
- напрямую;
- через соединение вилка-розетка.
Маркировка кабелей электрической духовки
В первом случае рекомендуется пользоваться стандартными клеммами, рассчитанными на подходящую мощность. Второй вариант является более предпочтительным. Обычно духовые шкафы продаются с имеющимся силовым кабелем, оканчивающимся штатной вилкой. В противном случае придется изготовить его самостоятельно, подключившись к соответствующим гнездам внутри корпуса духовки.
В процессе подключения важно правильно закрепить заземляющий провод к предназначенным для этого клеммам на корпусе духового шкафа, в вилке, розетке и на входном щитке. Чтобы исключить вероятность ошибки, его в трехжильных кабелях окрашивают в желтый или зеленый цвет
Осторожно! Электрические соединения мощных бытовых приборов с применением скруток не допускаются. Следует избегать прямого контакта алюминия и меди
Профессионалы используют пайку или винтовые зажимы.
Проверка работоспособности
Любой монтаж должен заканчиваться пусковыми испытаниями. Перед первым включением рекомендуется тщательно удалить остатки смазки с внутренних поверхностей духовой камеры, воспользовавшись чистой и чуть влажной ветошью. Пробный запуск происходит в течение 30 минут при температуре 250 оС без помещения в духовку пищи. Появление слабого запаха гари и небольшого дыма не является свидетельством неисправности. Скорее всего, это выгорает заводское масло.
После монтажа нужно обязательно запустить духовку
Желательно проверить оборудование на всех предусмотренных инструкцией режимах. При этом проверяется работа индикаторов и полезных функций. Если отклонений не замечено, можно приступать к эксплуатации.
Какие нужны розетки?
Подбор розетки обычно производят исходя из конструкции вилки на проводе питания духового шкафа. Это правильный подход, поскольку производители всегда комплектуют свою продукцию деталями, соответствующими эксплуатационным нагрузкам плюс некоторый запас прочности.
Тип розетки зависит от мощности духовки. Если она не превышает 3,5 кВт, можно использовать стандартную модель с заземляющим электродом (типа E или F), такую же, как и для чайников или микроволновок. При этом, необходимо обеспечить соблюдение нескольких условий:
Это должна быть отдельная розетка, специально установленная для духовки
Никаких удлинителей и тройников использоваться не должно
Подключение розетки должно быть выполнено трехжильным медным кабелем сечением не менее 2,5 мм.кв
Розетку необходимо подключить к дифференциальному автомату с максимальным током отсечки 16 А
Если мощность духового шкафа превышает 3,5 кВт, необходимо соблюдать те же требования, но с некоторыми изменениями:
Требуется силовая розетка с 3-жильным кабелем сечением не менее 6 мм.кв. Вилка для нее оснащена мощными плоскими контактами, способными выдержать рабочий ток и довольно сильный нагрев
Дифавтомат должен быть рассчитан на ток отсечки 32 А
Если духовка не оснащена проводом питания (некоторые модели не комплектуются кабелем, имеется только панель для присоединения проводов), лучшим вариантом станет приобретение и установка более мощной розетки. В данном случае запас мощности ничем не повредит и не нарушит режим работы духовки.
Мнение эксперта
Валерий Гармаш
Шеф повар ресторана «Grill House», гриллер
Иногда проблему с розетками решают кардинально — отрезают имеющуюся вилку и присоединяют другую, подходящую. Это позволяет решить вопрос, но отменяет действие гарантийного договора. Необходимо иметь этот момент в виду, чтобы не оказаться в неприятной ситуации.
Подключение духового шкафа
- Зачистите жилы питающего кабеля и сделайте на концах колечки, почти как на фото (кольцо должно замкнуться). Кольца обеспечат плотное и надежное соединение;
- Подключите клемную соединительную колодку к питающему кабелю. Плотно затяните крепежные винты;
Духовые шкафы обычно уже готовы к подключению и имеют свою вилку, которую достаточно включить в свою розетку. Если розетку не предусмотрели, то откусите вилку от кабеля духового шкафа и подключите его к клемной колодке варочной панели, предварительно опрессовав зачищенные концы.
Закройте крышку клемной колодки ( она прозрачна, на фото справа лежит). Соединение готово.
Где установить розетку?
Проще всего сразу распределить все розетки, электропроводку и щитки во время первоначального строительства дома или при выполнении капитального ремонта квартиры. Если возникла необходимость подключить духовку в помещении с завершенной отделкой, придется частично испортить ее, поскольку размещать провод в открытом состоянии нежелательно.
Не следует устанавливать розетку позади духового шкафа. При необходимости отключить прибор, придется тянуться за его корпус.
Не рекомендуемое место установки розетки (сзади духовки)
Рекомендуемое место монтажа розетки (имеется свободный доступ к отключению духовки)
Кроме того, расстояние от духовки до стены будет довольно большим. Размещать точки питания ниже 30 см от пола также не следует, хотя нередко розетки устанавливают на нижних опорах мебельного гарнитура. Это вынужденный и небезопасный вариант, поскольку иначе разместить розетки просто негде, мешает плотно установленная мебель.
Если прорвет водопроводный шланг, появляется серьезная опасность получить удар током через лужу воды. Нельзя размещать розетки поблизости от раковины, точек слива, водопроводных труб (не менее 40 см). От газовых труб расстояние должно быть не менее 50 см. Слишком высоко размещать розетки также нецелесообразно — неудобно отключать приборы, особенно, при необходимости быстро обесточить отказавшее устройство.
Если позаботиться о правильном размещении розеток еще на стадии постройки, можно распределить кабели и точки питания оптимальным образом. Однако, на практике это бывает редко — задачей считается постройка дома и скорейшее заселение, а остальные вопросы решатся в рабочем порядке. Это вызывает необходимость периодически штробить стены, прокладывать новые кабели и менять состав электрощитка.

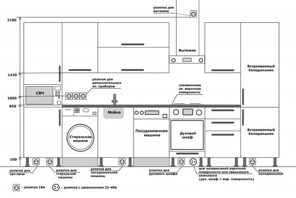
Схема размещения розеток на кухне
Когда понадобится подключить дополнительный прибор, найдется и место в нише, и возможность подключить устройство нужным проводом. Сами розетки удобнее всего устанавливать в зоне фартука — между нижним и верхним ярусом кухонного гарнитура. Здесь удобно подключать и отключать приборы, доступ к точкам питания быстрый и беспрепятственный.
Как своими силами подключить питающий кабель
Итак, мы выбрали способ, как подключить наши первоочередные кухонные устройства. Но наши питающие кабели подключены условно. Выясним, как это сделать по-настоящему. Традиционно, рассмотрим раздельно, духовой шкаф и варочную поверхность.
Для духового шкафа (мощностью не более 3.5 кВТ, Р=3.5 kW) необходимо приобрести кусок кабеля ПВС 3*2,5 и обычную бытовую вилку на 16А. Длина кабеля должна быть такой, чтобы после подключения кабель не был натянут
При присоединении к вилке (условимся, кабель имеет коричневую, синюю и желтую жилы), важно подключить желтую (желто-зеленую) жилу к клемме земля. Порядок подключения фазы и ноля следующий: коричневая жила это фаза, синяя это ноль. В розетке фазу можно определить с помощью индикатора фазы (любой бытовой прибор не реагирует на порядок фаза-ноль – если вилку телевизора вставить противоположно текущей позиции, то телевизор все равно будет работать, однако, будет лучше, следовать условиям эксплуатации данного электроприбора)
Далее, снимается небольшая пластиковая крышка, в месте подсоединения кабеля
В розетке фазу можно определить с помощью индикатора фазы (любой бытовой прибор не реагирует на порядок фаза-ноль – если вилку телевизора вставить противоположно текущей позиции, то телевизор все равно будет работать, однако, будет лучше, следовать условиям эксплуатации данного электроприбора). Далее, снимается небольшая пластиковая крышка, в месте подсоединения кабеля.
Там мы увидим соединение для каждой жилы кабеля.
Присоединение выполним следующим образом: L- это фаза, N- ноль, знак земля — желтый (желто-зеленый — это цвета земли с точки зрения электрики) согласно цветам жил
Очень важно: цвета жил провода в вилке при сочетании земля-фаза-ноль, должны соответствовать аналогичному сочетанию в подключаемом устройстве. Если в вилке фаза это коричневая жила кабеля, то и в духовом шкафе это коричневая жила. Точно так же с нулем и землей – сугубо по цветам
Точно так же с нулем и землей – сугубо по цветам.
Варочная поверхность. Как правило, модели варочных поверхностей универсальны. Это подразумевает подключение как на 220В так и на 380В. Переход как на одно так и другое напряжение реализуется с помощью установки соответствующих перемычек. У большинства варочных панелей, в месте подсоединения питающего кабеля (удобно доступная пластмассовая крышка) можно увидеть подобную схему подключения:
В случае квартиры, где выделенное напряжение 220В вывод очевиден (в случае частного дома, при выделенных 380В, электрики адаптируют вывод питания на варочную поверхность на 220В).
Для того, чтобы варочная поверхность работала от 220 В, следует установить перемычки согласно строке 3 схемы подключения. Для напряжения 380В выбираем строку 1. Практически это может выглядеть так:
Или так:
Что касаемо питающего кабеля, лучше использовать ПВС 3*6 (кроме случая, когда кабель в розетке меньшего сечения – а это 3*4мм2). В любом случае, рекомендуется придерживаться принципа – сечение питающего кабеля не может быть меньше сечения кабеля в розетке (провода выступающего из стены, для подключения варочной поверхности). Больше может. Как уже говорилось выше, варочная поверхность емкий потребитель электроэнергии. При мощности 7,3 кВт (Р=7,3kW), необходимо установить розетку и вилку, рассчитанные на ток 32А.
Сочетание цветов жил кабеля с землей, фазой и нулем полностью аналогично случаю духового шкафа.
При подключении питающих кабелей духового шкафа и варочной поверхности была указана марка кабеля ПВС. ПВС это гибкий многожильный силовой кабель в ПВХ изоляции. Но при неразъемном соединении с кабелем электропроводки (а это в большинстве случаев кабель марки ВВГ-нг, с монолитными негибкими жилами) эффективнее было бы использовать аналогичной марки кабель. С точки зрения простоты соединения — возможно. С точки зрения эксплуатации – все таки мы имеем дело с бытовыми приборами, а им присуща некоторая подвижность. Монолитный кабель рассчитан на неподвижность, вероятность поломки жил есть, но не большая. Вероятность же поломки мест соединения внутри прибора уже выше. Поэтому многожильный кабель (ПВС) более удобен, в данном случае.
При выполнении работ с электрооборудованием строго выполняйте меры безопасности от поражения электрическим током.
Это интересно: Зануление бойлера в квартире, если нет заземления: освещаем детально






























