Как сделать устройство своими руками
Основные этапы изготовления:
- подготовка схемы — планирование размеров, функциональных характеристик и дополнительных особенностей устройства;
- выбор материалов и инструментов;
- непосредственное изготовление;
- сборка;
- установка на необходимом месте, прокладка трубы, устройство печки.
Схема
Чтобы самому изготовить коптильню холодного копчения в домашних условиях с нуля нужно подготовить план работ и выполнить подробную схему устройства, которая будет включать:
Фото 3. Схема коптильни холодного копчения с дымогенератором. Указаны части конструкции, также потоки холодного и горячего воздуха при готовке.
- печь или дымогенратор опилок;
- коптильню;
- дополнительные элементы (ручки, разборные участки, дополнительные крышки, крюки, плитки, решетки, столешницы, навесы).
Справка. Ярусы решеток должны находиться как минимум на расстоянии 15 см друг от друга. Расстояние от дымогенератора до коптильни должно быть в среднем от 3 до 5 метров.
Материалы
В качестве материала хорошо подойдет обычная или нержавеющая сталь толщиной до 3 мм, можно использовать готовый металлический ящик или бочку. В качестве дополнительных материалов могут служить металлическая сетка или арматура. Они необходимы для создания решеток и крюков, на которые подвешивается мясо.
Для очага и прокладки трубы дымохода можно использовать кирпич, осколки кирпича, булыжник, камень, гальку, которые промазываются глиняной смесью.
Не стоит выбирать материалы, где содержится свинец, алюминий, оцинковка и другие примеси — при нагревании они выделяют вредные для человека вещества, которые могут испортить пищу.
Внимание! Если планируется окраска коптильни с внешней стороны, необходимо выбирать термоустойчивые краски, не дающие вредных испарений при нагревании
Подготовка
Для создания холодной коптильни понадобится проект, который может быть нарисован от руки. Потребуются следующие инструменты:
- болгарка;
- аппарат для сварки;
- угол столярный;
- метр и рулетка;
- молоток;
- аппарат для шлифовки;
- плоскогубцы;
- дрель.
Необходимые материалы:
- металлические листы;
- куски тонкой арматуры или металлическая сетка для решеток;
- болты и гайки из жаропрочных сплавов;
- кирпич или иные материалы для печи;
- металлическая печная труба для дымохода.
Важно! Для создания герметичности нужно провести качественную сварку внутренней и внешней сторон камеры коптильни, применять клепку или болты с гайками тут неэффективно
Как построить печь и дымоход
Для создания печи необходимо:
- выкопать яму или выбрать естественное углубление на участке;
- выложить в яме костровище с отверстием для вывода дыма;
- в очаге можно оборудовать участок для расположения углей и опилок или просто организовать костровое место и коптить при помощи дров дуба, ореха, фруктовых деревьев и веточек можжевельника;
- сверху очаг необходимо накрыть металлическим листом или оборудовать для него крышку, можно сделать небольшую надстройку с люком и термометром для более пристального контроля горения.
Для создания дымохода необходимо:
- вырыть траншею от костра к коптильне длиной от 4 до 7 м, проложить ее кирпичом, сверху накрыть металлическими листами или рубероидом, присыпать землей;
- вывести траншею к отверстию под камерой копчения и боковому отверстию очага.
Справка. Вместо траншеи можно организовать штольню или провести воздушный дымоход из металлической трубы.
Пошаговое создание коптильни
Коптильня должна быть герметичной, для этого рекомендуется использовать сварку.
Для того чтобы создать устройства, необходимо следовать инструкции:
- Вырезать из подготовленного металла при помощи болгарки или иного инструмента четыре сегмента равных размеров по длине и ширине.
- Скрепить первые два сегмента друг с другом сваркой.
- Скрепить сваркой остальные две стенки.
- Проварить внутренние швы для герметичности устройства.
- Выполнить днище — оно должно иметь отверстие и крепления для подключения дымохода.
- Выполнить крышку из листа металла, который на 10—15 см превышает поверхность верхней стенки коптильни, это необходимо для того, чтобы загнуть крышку с каждой стороны, проварить и обеспечить герметичность. У крышки могут быть отверстия для жесткого крепления к коптильне, а также ручка для переноски. Крышку можно сделать плоскую или в форме домика.
- Выполнить решетку из арматуры, расположить на внутренних стенках устройства, под решеткой наварить крючки для установки жирового поддона.
- Коптильня устанавливается над отверстием дымохода на столбиках из кирпича или металлических ножках, под решеткой или крюками для мяса располагается фильтр из войлока, задерживающий продукты горения.
Печка с дымогенератором для холодного копчения своими руками: видео и фото
В некоторых случаях габаритов стандартных устройств может оказаться недостаточно. Если вы хотите собрать конструкцию, отличающуюся большей производительностью, то тогда можно изготовить печь-коптильню и оснастить ее дымогенератором.
Рассмотрим последовательность действий по сборке печи-дымогенератора своими руками. Видео- и фотоматериалы, позволяющие вникнуть в тонкости процесса, без труда можно найти в интернете на профильных форумах.
Как уже было сказано выше, вначале собирается корпус конструкции. Далее необходимо вырезать в нем прямоугольную дверцу. Дымоходная трубка в таком устройстве располагается под определенным наклоном. Это необходимо для поддержания тяги внутри системы. Внутреннее пространство печи, сваренной из листов нержавейки, следует разделить на две части. Для этого также используется металлический лист. Нижняя часть должна занимать приблизительно 60% объема камеры. В этой области происходит розжиг огня. В свою очередь, верхняя зона нужна для размещения щепы.
Корпус можно выполнить из широкой металлической трубы или же сварить из кусков металла
Лучше всего составить своими руками чертеж дымогенератора для коптильни такого типа. Данная печь отличается высокой производительностью. Однако сборка такой конструкции требует больше времени, сил и ресурсов. В любом случае разновидность коптилки подбирается исходя из ее назначения и индивидуальных предпочтений хозяина.
Устройство дымогенератора для холодного копчения, сделанного своими руками
Самодельная конструкция состоит из ёмкости с крышкой, трубки для подачи дыма в коптильню и небольшого компрессора. Все составляющие комплекта можно купить по отдельности. Самодельный генератор обойдётся вам гораздо дешевле заводского, а для его изготовления не потребуются какие-то специальные инструменты. Современные «кулибины» обходятся даже без сварочного аппарата. Выглядит этот прибор примерно так:
Самодельный дымогенератор
Схема для дымогенератора холодного копчения своими руками
Схемы устройства несложно найти в сети Интернет. Вариантов несколько, но все они объединены общими деталями конструкции:
Устройство генератора с разными видами эжекции
Эжектор в дымогенераторе
Эжектор – устройство, которое организует циркуляцию дыма из генератора в коптильный бак. Изготовить его можно из обычной водопроводной металлической трубы, а для соединения используют сгоны и уголки из того же арсенала сантехника. Соединять части инжектора можно сваркой, пайкой или резьбой. Проще всего использовать резьбовые соединения.
Размещают эжекторы в верхней или нижней части генератора. При размещении в верхней части продукты разложения опилок оседают на внутренних стенках генератора и на самой щепе в ёмкости, всё это повторно горит и образует большое количество канцерогенных соединений. Специалисты предлагают отдать предпочтение в самодельном дымогенераторе для коптильни холодного копчения нижней эжекции, при которой обеспечивается оптимально чистый дым, а само обслуживание генератора значительно упрощается.
Подробнее об этом в видеоматериале:
Компрессор для дымогенератора коптильни: нужен или нет
Задача компрессора – подача дыма из генератора в коптильню. От интенсивности дымления напрямую зависит результат работы. Холодное копчение – длительный процесс, поэтому компрессор должен работать долго, несколько часов, а то и суток
Важно, чтобы домашнее устройство не потребляло много электроэнергии и было ремонтопригодным
Важный момент – регулировка интенсивности подачи воздуха. Она поможет правильно подобрать режим и продолжительность копчения
Для небольшой камеры достаточно мощности компрессора в 0,8 атм, с такой задачей легко справляется небольшой прибор, к примеру, аквариумный. Для больших коптилен умельцы используют автомобильные компрессоры или детали от холодильника.
Камера для копчения
Для качественного холодного копчения потребуется несколько суток, но за это время в камере могут образовываться и вредоносные микроорганизмы, которые способны испортить продукты
Именно поэтому важно сделать камеру герметичной и правильно организовать весь процесс
Самый простой вариант – сделать камеру из двухсотлитровой металлической или деревянной бочки
Важно добиться герметичного стыка трубы дымогенератора и камеры. Бочку устанавливают на кирпичи, а на дно укладывают поддон для сбора жира
Внутри импровизированной камеры приваривают несколько кусков арматуры для подвешивания продуктов. На эту же арматуру можно установить решётки, если вы хотите разложить рыбу или сыр.
Можно изготовить камеру из кирпича или листового железа. Такие капитальные сооружения подходят для тех, кто собирается постоянно использовать коптильню или зарабатывать на этом. Швы кирпичной кладки тщательно замазываются глиной
Если камера металлическая, то важно проследить за качеством сварных швов
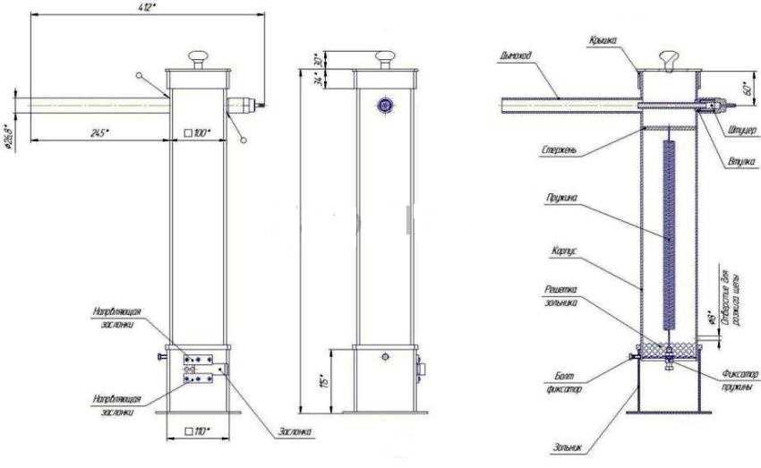
Дымогенератор для холодного копчения своими руками: чертеж
Составление чертежа – это необходимый подготовительный этап, который позволяет выполнить соответствующие расчеты и обозначить их на бумаге. В схеме обязательно обозначается корпус дымогенератора, который может иметь круглую или квадратную форму.
Корпус самодельного дымогенератора используется в качестве камеры, которая наполняется топливом. Стенки устройства обязательно должны обладать хорошей герметичностью. В противном случае дым, образованный при тлении опилок, будет рассеиваться в окружающее пространство.

Чтобы сделать дымогенератор для холодного копчения своими руками необходимо использовать чертежи
Сами устройства для копчения продуктов подразделяются на разновидности в зависимости от конструктивных особенностей и назначения. Сегодня можно встретить габаритные стационарные устройства или, наоборот, более компактные, переносные. В конструкции коптилки может присутствовать заслонка. Этот элемент позволяет увеличить приток воздуха в камеру, которая содержит топливо.
Самодельная коптильня холодного копчения может иметь две топки. Такая конструкция направлена на увеличение тяги в системе. Дымогенераторы используются как в горячих, так и в холодных коптилках. В чертеже указываются все составляющие элементы устройства. Обязательно нужно внести в схему эжектор и его размеры, а также компрессор.
Как сделать дымогенератор своими руками: изготовление эжектора
Эжектор – это устройство, которое является трубкой и используется для создания необходимого показателя тяги в дымогенераторе. Данный прибор классифицируют по месту расположения. В зависимости от этого фактора можно выделить два типа эжекторов:
нижние;

Любой дымогенератор для коптильни холодного копчения состоит из контейнера, насоса (компрессора) и эжектора
верхние.
Первый вариант не рекомендуется специалистами для коптилок, изготовленных собственноручно. Это связано с тем, что такое размещение препятствует притоку воздуха, что, соответственно, отражается на тяге в конструкции. Трубки, установленные в нижней части, требуют постоянного контроля, что не очень удобно. При составлении чертежа дымогенератора необходимо заранее продумать расположение данной трубки и зафиксировать его на рисунке.
Избежать проблем с тягой довольно просто. Все, что для этого нужно, –разместить эжектор в верхней половине дымогенератора. Такой ход имеет несколько преимуществ. Установка эжектора в верхней части способствует увеличению объема зоны сгорания. Топливо, расположенное внутри камеры, тлеет медленнее в этом случае, а также уменьшается вероятность того, что оно потухнет.
Так производится сборка эжектора для дымогенератора своими руками. Чертеж, фото и пошаговая инструкция – все это позволяет выполнить грамотную сборку данного изделия.

Схема эжектора для дымогенератора холодного копчения
Из чего сделать компрессор для дымогенератора своими руками?
Компрессор считается одной из важнейших деталей прибора, который генерирует дым для копчения продуктов. Его можно приобрести отдельно, после чего присоединить к конструкции. Но чаще всего для этих целей используются различные подручные материалы, которые можно найти в каждой квартире или доме.
Статья по теме:
Нагнетатель воздуха своими руками можно выполнить из старого кулера. Данная компьютерная деталь как нельзя лучше подходит для увеличения притока воздуха в конструкцию. Необходимо соблюдать порядок действий по трансформации кулера в компрессор.
В первую очередь потребуется взять пластиковую бутылку и обрезать ее верхнюю часть. Далее с помощью клея следует присоединить вентилятор к внутренней части обрезанного пластикового элемента. С другой стороны (к горлышку) подключается шланг. Второй выход трубки подсоединяется к дымогенератору. Такая конструкция отлично справляется со своей функцией. Единственный ее минус заключается в непрезентабельном внешнем виде.

Компрессор для дымогенератора своими руками можно выполнить из старой компьютерной детали — кулера
Еще одним распространенным вариантом является покупка аквариумного компрессора для дымогенератора. Многие люди отмечают, что устройство для производства дыма может работать и без компрессора. Но эффективность такой установки ниже, так как воздух поступает в нее естественным путем.
Таким образом, для увеличения производительности рекомендуется собрать компрессор. Причем необязательно, чтобы он имел сложную конструкцию. Простой вентилятор для дымогенератора своими руками значительно упрощает копчение, а на его производство уходит не более часа.
Что собой представляет коптильня, конструкция
Холодильник сейчас – основная составляющая сохранения продуктов питания. Но в те времена, когда не было электричества, копчение продуктов было чуть ли не единственным способом заготовки. В первую очередь, таким образом продлевали срок хранения мяса, рыбы. Копченые, вяленые фрукты, овощи еще в Древнем Риме считались деликатесами. Свои рецепты и технологии копчения есть в каждом государстве. К примеру, знаменитый английский бекон, французский карбонат.
На Руси традиции заготовки способом копчения сохранились в древних времен. Доказательством служат археологические раскопки, сохранившиеся старинные рецепты. В барской усадьбе, поместье была своя стационарная коптильня. Коптить продукты умел каждый охотник. А самым распространенным способом в Древней Руси было подвешивание продуктов, завернутых в тряпки возле печи бани, которые топили «по-черному».
Различают продукты:
- горячего копчения;
- полугорячего копчения (температура 60-70 градусов);
- холодного копчения.
Лучший эффект с точки зрения сохранности пищи дает холодное копчение.
Особенности горячего копчения
Это способ, который предполагает быстрое приготовление продукта при более высоких температурах.
Можно выделить два режима:
- Температурный режим: 35-55 градусов, время от 12 часов до 2 суток.
- Температурный режим: 80-90 градусов, время от 20 минут до несколько часов.
Время приготовления зависит от того, что именно коптят. Срок хранения пищи после горячего копчения не превышает 3 суток.
Принцип устройства достаточно прост. Необходима емкость (коптильная камера), в которой устанавливаются решетки, крючки для укладки, подвешивания припасов. Форма камеры может быть округлой, квадратной. Под емкостью устраивают очаг, в котором должны тлеть опилки. Дым от них поднимается вверх, обволакивая подвешенные, разложенные припасы. Сверху камеру прикрывают влажной мешковиной, крышкой. В походных условиях можно накрыть свежими ветками деревьев. В крышке лучше сделать небольшое отверстие для выхода лишнего дыма.
Изготовить такого рода конструкцию можно из подручных хозяйственных материалов: ведра, бочки, корпуса старого холодильника, газового баллона. Простейшую коптильню делают из деревянной стойки, обтянутой плотной пленкой.
Схема коптильни горячего копчения довольно проста. Для домашнего пользования можно сделать малогабаритную переносную коптильню. Лучше всего из нержавеющего металла, толщиной не менее 2 мм. При определенных навыках такую коптильню можно сделать самостоятельно. В условиях дома или квартиры на сапун (выводное отверстие) надевают трубку и выводят дым в форточку, вытяжку.
Схема мобильной коптилки горячего копчения представлена в интернете.
Особенности конструкции коптильни холодным способом
Устройство дымогенератора, сделанного своими руками для холодного копчения должно осуществляться на участке земли под уклоном для лучшей тяги дыма. Но можно устроить его и на прямолинейном отрезке, главное – обеспечить хорошую тягу.
Холодное копчение – более длительный процесс, но именно он обеспечивает увеличения сроков хранения, придает потрясающий вкус продуктам. Температурный режим, сроки индивидуальны для каждого вида пищевых продуктов. В отдельных хозяйствах есть свои секреты копчения. В старину фирменные рецептуры хранились в тайне.
Температурный режим в среднем составляет 20-25 градусов, иногда его повышают до 30 градусов, но не выше 50. При более высоком температуре процесс ускоряется. Длительность копчения регулируются степенью готовности. Улучшенными вкусовыми качествами отличается пища, приготовленная при низких температурах. Чем длиннее дымоход, который идет от источника тлеющей щепы, тем ниже температура дыма. Еще одним преимуществом такого дымохода является более чистый дым. Канцерогены (полициклические ароматические углеводороды, ПАУ), сажа оседают на стенках дымохода.
Универсальный способ копчения обеспечит дымогенератор.
Самодельная коптильня из трубы: как делать
Для этого достаточно следовать инструкции и заранее подготовить все необходимое для работы.
Материалы и инструменты, которые потребуются
Для самодельной конструкции нужно подготовить:
- стальную трубу с диаметром 10 сантиметров;
- гофру из пластика – длина не должна превышать три метра или можно воспользоваться металлическим рукавом;
- отрезок металлической трубки – до 40 см с диаметров 2,5-4 см;
- небольшой компрессор – подойдет аквариумный;
- фитинговая стыковка, которая будет иметь такой диаметр, как и дымовой канал;
- включатель и электропровода;
- термометр.
Из инструментов нужно подготовить сварочный аппарат и болгарку. Желательно иметь хотя бы минимальный опыт работы с данными инструментами, чтобы во время процесса сборки генератора избежать травм и сделать все правильно и аккуратно.
Чертёж дымогенератора из трубы
Для того, чтобы было проще выполнять процесс сборки, стоит изучить чертежи дымогенератора из трубы. Ниже представлен самый простой и подробный вариант.
Чертеж дымогенератора из трубы с нижним и верхним расположением эжектора
Пошаговая сборка
Нужно использовать все заранее подготовленные материалы, чтобы собрать дымогенератор, который будет использоваться для холодного копчения, своими руками из трубы.
В первую очередь делается камера. Как правило, средняя высота дымогенератора составляет 70-80 сантиметров. В верхней части должна располагаться крышка, которую можно было бы снимать. Это нужно для того, чтобы можно было без проблем засыпать внутрь устройства топливо. В нижней части делается небольшая емкость, куда будет падать зола.
В наиболее простых вариантах генератора, щепа насыпается на дно устройства, которое приваривается наглухо к краю трубы. В этом случае для очищения конструкцию переворачивают. Зольник в таком самодельном дымогенераторе не предусмотрен.
Также есть еще один вариант конструкции. Щепа насыпается на решетку, которая предварительно крепится на определенном расстоянии от дна устройства. Зола, которая остается после перегорания топлива, будет сыпать сквозь решетку. Обычно, дно в таких устройствах – съемное. Также можно добавить заслонку, чтобы чистить зольник. Такой вариант считается наиболее трудоемким.
Вне зависимости от выбранного варианта, в нижней части самодельного генератора просверливается небольшой отверстие, диаметр которого будет составлять 5-6 миллиметров. Сквозь него в устройство будет поступать минимальное количество воздуха, чтобы опилки медленно тлели.
В верхней части конструкции, примерно на 7-9 сантиметров ниже верхнего края используемой трубы, делается еще одно отверстие. С его помощью к дымогенератору будет крепиться трубка дымоотвода.
Дальше собирается эжектор. Данное устройство используется для того, чтобы высасывать дым из дымогенератора и направлять его в дымоход. Трубка небольшого диаметра, в которую будет подаваться давление из компрессора, входит на пару сантиметров в трубу дымохода, которая имеет больший диаметр. За счет того, что воздух будет медленно двигаться, возникает незначительно разрежение и дым из камеры начинает уходить в дымоход.
После того, как все самые главные детали будут соединены и закреплены, нужно только окончательно собрать самодельный генератор дыма и проверить, насколько эффективно он работает.
- Внутрь конструкции необходимо поместить щепки. Достаточно использовать 700-800 грамм топлива. Лучше всего использовать опилки из лиственных или фруктовых деревьев, которые сделают готовую копченость не только вкусной, но еще и достаточно ароматной.
- Дальше нужно плотно закрыть крышку устройства и установить сооруженную конструкцию на определенное место рядом со стенкой коптильни. Если дымогенератор отдельностоящий, то к дымоходу нужно присоединить шланг, который будет направлен непосредственно в коптильню.
- Затем через небольшое боковое отверстие поджигается топливо и включается компрессор.
Теперь остается только время от времени следить за тем, чтобы опилки равномерно тлели и не затухали, чтобы получились вкусные и ароматные копчености домашнего приготовления.
Самодельная коптилка
На канале “Олег 0406016” показали интересную простую конструкцию коптилки с дымным генератором.
Конструкция модели
Труба 560 мм. Должна быть от 500 до 600 мм. Диаметр наружный 110 мм. Дополнительная труба три четверти и длиной полметра. Система: от металлопластиковых элементов, трубка 8-ка нержавейка, входит в отверстие плотно, почти прессуется. Стык проточен, нарезана резьба м18 шаг 1, чтобы она снималась. Устройство закручивается, входя в дополнительный канал.
Работа дымогенератора
Для работы сначала необходимо насыпать опилки в генератор дыма. Внизу основной трубы сделана сетка. Сетка в случае использована штукатурная, сложенная вдвое, чтобы ячейки были меньше. В низ трубы на сетку насыпаются опилки, низ прикрывается крышкой, остается небольшой зазор для поддува. Наддув за счет крышки может регулироваться: больше – меньше. Также необходим компрессор. Компрессор подключается к конструкции, за счет чего происходит вдувание воздуха. «Система» входит на приблизительно 15 мм в дополнительную трубу. За счет тяги опилки внутри основной части начинают тлеть. Верх прикрывается крышкой.
Автор видео использует опилки вишни, либо черешни. Если насыпать много опилок с первого раза, то дым может получиться не объемным. Для более густого дыма рекомендуется в нижней части основной трубы развести костер, так как поджигать сами опилки сложно. В завершении необходимо построить «Домик». Для этого можно использовать бочку, ведро и т.п. Автор предлагает сделать домик наподобие будки.
Дымогенераторы самостоятельного изготовления

Дымогенератор из электроплиты

- электрическая плитка;
- старая кастрюля;
- труба или бывшая в употреблении бочка,
- сетка из проволоки;
- два прута арматуры;
- лист железа, фанеры;
- опилки, щепки.


- Подготовить бочку. Тщательно очистить ее от остатков содержимого. Затем, отмерив примерно одну треть высоты от верха бочки, пропустить через ее стенки несколько арматурных прутов. На арматуру закрепить сетку, к ней подвесить необходимые продукты. Бочка готова к использованию.
- Устойчиво установить плитку на негорючую поверхность и подключить ее к розетке.
- Положить в кастрюлю древесное топливо.
- Кастрюлю поставить на включенную в розетку плитку.
- При помощи ручки регулятора температуры отрегулировать мощность ее нагрева.
- Поставить бочку на плитку.
- Прикрыть сверху конструкцию железом или фанерой.



Дымогенератор из отработанного огнетушителя

- Разрезать огнетушитель, отступив сверху около 5 см. В результате получим крышку.
- В крышке сделать отверстие, вкрутить тройник с патрубками.
- К одной из трубок присоединить компрессор, а другая будет служить для доставки дыма в коптильную камеру.
- Сделать в огнетушителе несколько отверстий на расстоянии 4-6 см от нижней части огнетушителя. Через эти отверстия будет поджигаться щепа, регулироваться тяга.

Дымогенератор из жестяных банок

- три жестяные консервные банки цилиндрической формы: две — одинаковых, одна — чуть меньшего размера;
- соединительные хомуты или металлическая лента;
- лента фум;
- тройник и гайка для его закрепления;
- кусок медной трубки с небольшим диаметром;
- кусок трубки большего диаметра и длины для соединения дымогенератора с коптильным шкафом.

- Очистить и высушить консервные банки.
- Соединить две банки одинакового диаметра с помощью железного хомута или металлической ленты. Предварительно у одной банки отрезать дно.
- Внизу первой банки проделать отверстия для розжига топлива и регулировки тяги.
- В дно третьей, меньшей, банки устанавливается тройник. Изнутри он крепится гайкой. Соединение должно быть очень плотным и не пропускать воздуха.
- К одной стороне тройника крепится сгон с трубкой, соединение герметизируется лентой фум.
- Медную трубку вставить одним концом в патрубок так, чтобы она выступала с другой стороны тройника на несколько сантиметров. Место входа загерметизировать. Эжектор готов.
- Трубку большего диаметра прикрепить ко второму отверстию тройника. К ней будет присоединяться коптильная камера.
- Насыпать опилки или щепу в нижние банки на высоту около двух третей и поджечь через отверстия.
- Закрыть конструкцию сверху эжектором.
- На второй конец медной трубки прикрепить шланг компрессора.


Что такое холодное копчение
Холодное копчение — это процесс обработки продуктов с помощью дыма.
Температура копчения не превышает 30°, для чего между источником (тлеющей древесиной) и коптильным шкафом (емкостью, в которую загружены подготовленные продукты) делается длинный канал. Проходя по нему, дым теряет свою температуру и поступает в коптильню уже с нужными параметрами. Продукты, обработанные таким способом, сохраняют свои полезные свойства, витамины, микроэлементы. Отсутствие нагрева позволяет сохранить плотность и структуру продуктов. Таким способом можно готовить мясо, рыбу, бекон, фрукты и овощи и массу других продуктов.
Холодное копчение — весьма длительный процесс. Обработка длится многие часы, иногда — дни. В отдельных случаях длительность процедуры может достигнуть месяца. Кроме того, качество обработки зависит от особенностей конструкции коптильни, длины и конструкции канала и прочих факторов. Поэтому, качество копчения у разных конструкций немного отличается.
Для приготовления качественных копченых продуктов необходимо обеспечить соответствие оборудования определенным требованиям. Это усложняет процесс сборки стационарных коптилен, требует больших трудозатрат и множественных экспериментов.
Дымогенератор из огнетушителя своими руками: простой и надежный вариант
Такая конструкция является, пожалуй, наиболее простой. Для ее сборки нужен старый огнетушитель. Корпус этого устройства обязательно должен быть металлическим
Важно запомнить, что огнетушитель не должен иметь ржавые стенки. В случае если в приборе еще осталось содержимое, необходимо опустошить его и тщательно промыть перед началом работы. Из старого огнетушителя можно сделать дымогенератор для холодного копчения
Видео на эту тематику можно найти, воспользовавшись поисковой строкой вашего браузера. Правильная и четкая последовательность действий позволит выполнить качественную трансформацию огнетушителя в дымогенератор
Из старого огнетушителя можно сделать дымогенератор для холодного копчения. Видео на эту тематику можно найти, воспользовавшись поисковой строкой вашего браузера. Правильная и четкая последовательность действий позволит выполнить качественную трансформацию огнетушителя в дымогенератор.
Для того чтобы изготовить дымогенератор, берется огнетушитель диаметром около 100 мм и длиной в 500 мм.
Вначале потребуется разрезать огнетушитель. Надрез производится в верхней части (на 5 см ниже горловины). В результате получается простая крышка, которая не нуждается в дополнительном видоизменении. Далее необходимо выполнить два отверстия в нижней части огнетушителя. Желательно, чтобы они располагались ниже среза, сделанного в верхней части, на 5-6 см. Оптимальный диаметр в этом случае должен составлять 2,5 мм.
На заметку! Перед сборкой рекомендуется выполнить подробный чертеж дымогенератора для холодного копчения своими руками. Видео также поможет упростить процесс изготовления данного устройства.
После организации отверстий можно приступить к следующему этапу – привариванию к ним трубок. Длина изделий не должна превышать 7-8 см. Одна трубка будет служить дымоходом, а вторая необходима для подачи воздуха. Данная конструкция учитывает верхнее расположение эжектора, а отверстие для подсоса воздуха будет находиться в нижней части устройства.
Дымогенератор, изготовленный из старого огнетушителя, способен бесперебойно функционировать около 7 часов. Таким образом производится сборка простейшего устройства для нагнетания дыма.
Из огнетушителя дым в камеру для копчения попадает через дюймовую трубу длиной 150‑250 мм, вкрученную в тройник.
Дымогенератор позволяет значительно упростить процесс копчения. Для самостоятельной сборки этого прибора необходимо составить предварительный чертеж. В нем обязательно указываются размеры отдельных составляющих. Изготовление данного прибора производится в соответствии с инструкцией. Если вы не уверены в собственных силах, то тогда лучшим выходом будет приобретение готового дымогенератора.
Коптилка из огнетушителя
Старый огнетушитель хорошо подойдет для изготовления простейшей коптилки за короткое время. Перед работой следует полностью устранить оставшееся содержимое в баллоне и проверить наличие ржавчины. Если она присутствует, то поверхность нужно зашлифовать УШМ со специальным кругом.
Дымогенератор из огнетушителя для холодного копчения поэтапно создается так:
- Отрезать верхнюю часть емкости. Для ровной разметки используется газета, которой надо обернуть корпус, чтобы края бумаги совпали друг с другом.
- Отрезать следует болгаркой и в защитных очках.
- Затем от отрезанного края огнетушителя нужно вырезать пластинку шириной 5 см. На полученном кольце разрезать любую сторону. Далее внутрь трубы надо поместить пластину и посмотреть, сколько нужно убрать лишнего металла, чтобы материал плотно прижимался к внутренним стенкам баллона, но и тугая подвижность кольца тоже должна присутствовать.
- После тщательного подгона пластину прихватывают сваркой, снова проверяют плотность прилегания, а затем формируют шов.
- К сделанному кольцу приварить крышку от огнетушителя. Пластину надо поместить внутрь емкости и поставить прихватки на одинаковом расстоянии друг от друга. Таким образом, крышка будет плотно насаживаться на корпус, и не стоит беспокоиться о просачивании дыма.
- На крышке снимают лишние детали, чтобы осталась трубка для вывода содержимого огнетушителя. На выходной канал прикручивают тройник, с одной стороны монтируются детали эжектора: сопло из медной трубки с резьбовым переходником. Затем прикрепляется шланг, подводящийся к компрессору.
- С обратной стороны тройника прикрепляется дымоходный канал, направляющийся внутрь коптильной камеры.
- Внизу корпуса на высоте 5 см проделывается отверстие сечением 2 см для розжига топлива.
Чтобы избавиться от золы, с огнетушителя надо снять крышку и перевернуть емкость.
Дымогенератор, подходящий для холодного копчения
ARTUR AZOYAN.
Как и из каких деталей был собран коптильный аппарат
Свой дымогенератор мастер собирал в течение 2 недель. Проблема в том, что некоторые детали, используемые в данной конструкции, достать трудно. В магазинах их нет. Вырезать необходимую резьбу на какой-то трубе тоже не просто. В местности, где проживает мастер, сантехники практикуют 16 миллиметровые медные трубки. То есть покупаешь необходимого размера трубки, переходники к ним, посадил, болт сажал, сантехника готова. Никто не мучается со сгонами. Всё продается в готовом виде. Сложностей было очень много, но раз начал, дело надо довести до конца. В итоге удалось найти в магазине необходимую деталь – 10-12 сантиметров полностью резьбовой сгон, к нему угольник и тройник.
Купить домашнюю коптильню
Для тех, кто любит копченые продукты, но не имеет дачи или своего участка для сооружения объемной коптильни индустрия электроприборов выпустила домашние коптильни. Маленькие, портативные, они представляют собой большую кастрюлю установленную на нагревательном электрическом элементе.

Внутри коптильни-кастрюли существует сеть отделов для щепы, продукта, жира, вытекаемого из полуфабриката. В крышку устройства встроен термометр, что значительно облегчает и позволяет регулировать весь процесс копчения.

Ручки крышек для подобных приборов обычно изготавливают из дерева, ведь подобный материал не нагреется во время процесса, а это поможет избежать травматизации людей, работающих с подобной техникой.


Дымогенератор коптильни и для чего он нужен
Все, кто когда-либо проводил копчение традиционным образом знают, что это довольно длительный и энергозатратный процесс, обычно копчение продукта затягивается на несколько дней и требует непрерывного надзора за температурой и количеством дров в топке.

Инженерная мысль позволила значительно сократить время и прилагаемые усилия за счет применения дымогенератора для коптильни. Это приспособление создано для того, чтобы в короткие сроки и в довольно большом объеме создавать дым и подавать его в отдел где и коптится продукция. 














В домашних условиях его тоже можно изготовить. Устройство его не сложное, состоит дымогенератор из камеры, в которой на дне насыпана щепа, она горит, перпендикулярно, через верхнюю часть корпуса проходит труба, изготовленная из металла, приспособленная для циркуляции воздуха, поставляемый, например, аквариумным насосом.


Вообще, люди зашли довольно далеко в стремлении получить быстро и дешево вкусную полезную еду. Примеров коптилен на любой вкус, цвет и кошелек можно найти огромное количество. Фото готовых коптилен в интернете на разных сайтах тоже в избытке.































